Part 1 Part 2: 2012 Excavations Part 3:
2013 Excavations

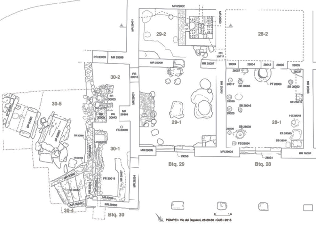
Plan of the
potter's workshop (shops N28-N30) and burials (1:50th). G. Chapelin, B. Lemaire – CJB/EFR/CNRS - CC
BY-NC-ND 4.0
Plan de
l’atelier de potier (boutiques N28-N30) et des sépultures (1 : 50e). G.
Chapelin, B. Lemaire – CJB/EFR/CNRS - CC BY-NC-ND 4.0
See Pompéi, Porta Ercolano : organisation, gestion et transformations d’une zone suburbaine : Campagne 2015, fig. 15. CEFR 1581

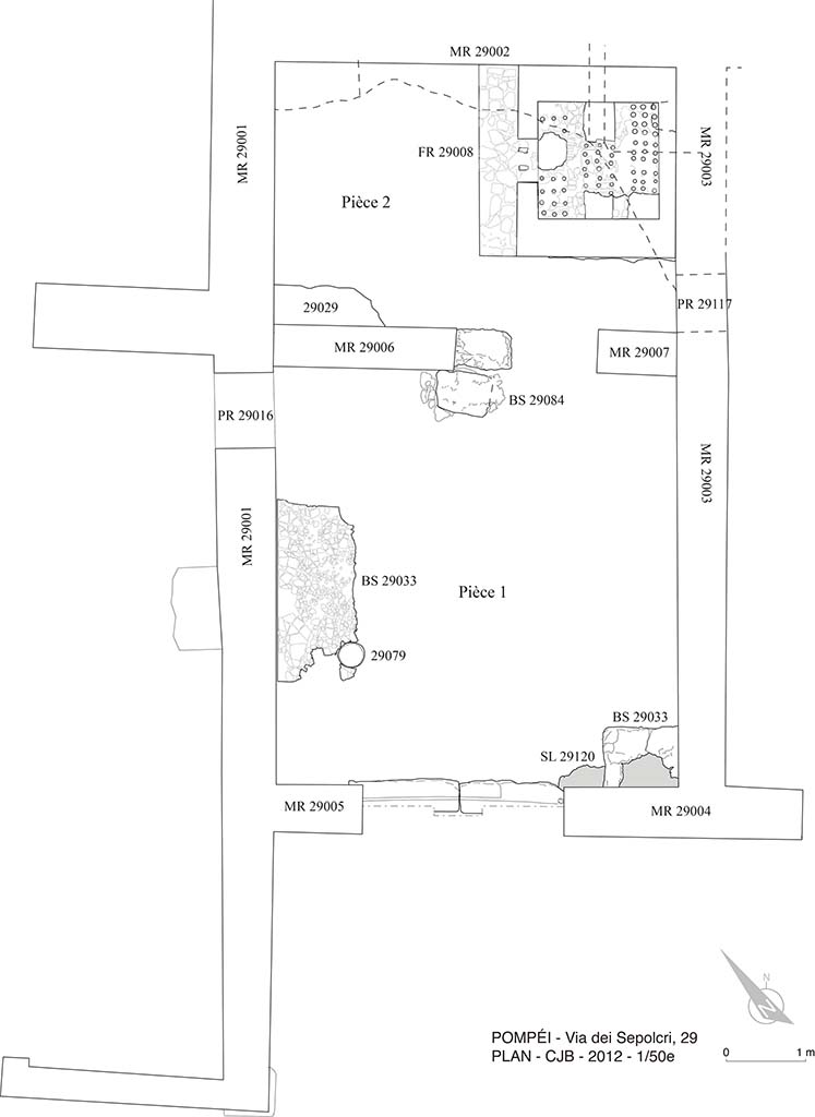
HGE29 Pompeii. 2012. Plan by G. Chapelin, J.-A. Delorme, B. Lemaire.
Photo courtesy of Laëtitia Cavassa, Bastien Lemaire, Guilhem Chapelin, Aline Lacombe, John-Marc Piffeteau and Giuseppina Stelo.
Photo © Centre Jean Bérard. For full report, see links above or below.

HGE29 Pompeii. May 2006. Looking east through remains of colonnade towards entrance.

HGE29 Pompeii. October 2023.
Looking south along colonnade of portico. Photo courtesy of Klaus Heese.

HGE29 Pompeii. October 2023. Looking south along exterior
colonnade. Photo courtesy of Klaus Heese.

HGE29 Pompeii. October 2023. Looking north-east through entrance
doorway. Photo courtesy of Klaus Heese.

HGE29 Pompeii. May 2006. Looking east to entrance doorway to rooms 1 and 2.
The workshop was discovered and excavated between October 15 and November 11, 1838.
Fiorelli specifically mentioned the oven and 34 pots with a handle discovered on October 15, 1838.
See Fiorelli G., 1863. Pompeianarum
antiquitatum historia, Vol. 2: 1819 - 1860, Naples, p. 361.
According to Fiorelli, HGE29 enclosed a reverberatory furnace for firing pottery, and had another room, with a second furnace not fully excavated.
See Fiorelli, G., 1875. Descrizione di Pompei. Napoli, p. 416.
On the 22nd of October 1838, a second potters oven was discovered and in a corner of the same were found 30 pots of various shapes and sizes, and among them one with long handle: See Fiorelli G., 1863. Pompeianarum antiquitatum historia, Vol. 2: 1819 - 1860, Naples, p. 361.
This second oven would have been in shop HGE30.
According to Garcia y Garcia, a bomb fell during the night of 18th September 1943 hitting the workshop HGE30.
This destroyed the two rooms with their respective ovens.
See Garcia y
Garcia, L., 2006. Danni di guerra a Pompei. Rome: L’Erma di Bretschneider, (p.163).
According to Mau, a potter’s workshop with two ovens was located at HGE29 and HGE30.
The ovens, which were not large, had an upper division in which were placed the vessels to be baked.
Beneath this was a firebox, underneath the floor above being pierced with holes to let the heat through.
The vault of one of the ovens was constructed of parallel rows of jars fitted into one another.
See Mau, A., 1907, translated by Kelsey, F. W., Pompeii: Its Life and Art. New York: Macmillan. (p. 386).

HGE29 Pompeii. October 2023. Looking east through entrance
doorway. Photo courtesy of Klaus Heese.

HGE29 Pompeii. October 2023.
Looking east along north wall of room 1 with niche and
doorway into HGE30. Photo courtesy of Klaus Heese.

HGE29 Pompeii. May 2006. North wall of room 1 with niche and doorway into HGE30.

HGE29 Pompeii. 2012. North wall of room 1. Structure made of cut bricks and tiles and the level of lapilli in room 1.
Photo B. Lemaire.
Photo courtesy of Laëtitia Cavassa, Bastien Lemaire, Guilhem Chapelin, Aline Lacombe, John-Marc Piffeteau and Giuseppina Stelo.

HGE29 Pompeii. May 2006. North-east corner of room 1, with doorway and rear room 2.

HGE29 Pompeii. October 2023. Looking east along south wall of
room 1 towards south-east corner. Photo courtesy of Klaus Heese.

HGE29 Pompeii. May 2006. South wall of room 1.

HGE29 Pompeii. 2012. Excavations in room 1. Photo B. Lemaire.
Photo courtesy of Laëtitia Cavassa, Bastien Lemaire, Guilhem Chapelin, Aline Lacombe, John-Marc Piffeteau and Giuseppina Stelo.

HGE29 Pompeii. May 2006. Looking east to rear room 2.

HGE29 Pompeii. September 2013. Room 2. Front of oven.
Photo courtesy of Laëtitia Cavassa, Bastien Lemaire, Guilhem Chapelin, Aline Lacombe, John-Marc Piffeteau and Giuseppina Stelo.
Photo © Centre Jean Bérard. For full report, see links above or below.
![HGE29 Pompeii. Room 2. 1855 drawing of front of the furnace by Ernest Breton.
According to Breton, the oven which was located in the back room, was a very remarkable construction.
He described it as a reverberatory furnace, [a furnace that isolates the material being processed from contact with the fuel, but not from contact with combustion gases].
It was built of stone and brick, [the platform] forming a solid square of 2.60m by 2.40m, and of 0.90m high.
The platform of the furnace was flat and perforated with small holes to let the flame enter the oven, which was located above.
The oven was 1.25m in all directions inside with 1.80m height in the middle of its vault.
This vault, which was the most singular part of the construction, consisted of terracotta vases nested within each other.
Openings in the sides of the oven and topped with terracotta pipes, allowed [the potter] to moderate the heat at will.
In a room on the left, linked to the shop, lay an oven smaller than the one described here, but whose construction was nothing remarkable.
See Breton, Ernest. 1855. Pompeia, decrite et dessine: Seconde edition . Paris, Baudry, p. 234-5.
The vault, which still existed in part in 1854, had by 1870 collapsed.
See Breton, Ernest. 1870. Pompeia, Guide de visite a Pompei, 3rd ed. Paris, Guerin, p. 289.](tombs%20hge29_files/image026.jpg)
HGE29 Pompeii. Room 2. 1855 drawing of front of the furnace by Ernest Breton.
According to Breton, the oven, which was located in the back room, was a very remarkable construction.
He described it as a reverberatory furnace, [a furnace that isolates the material being processed from contact with the fuel, but not from contact with combustion gases].
It was built of stone and brick, [the platform] forming a solid square of 2.60m by 2.40m, and of 0.90m high.
The platform of the furnace was flat and perforated with small holes to let the flame enter the oven, which was located above.
The oven was 1.25m in all directions inside with 1.80m height in the middle of its vault.
This vault, which was the most singular part of the construction, consisted of terracotta vases nested within each other.
Openings in the sides of the oven and topped with terracotta pipes, allowed [the potter] to moderate the heat at will.
In a room on the left, linked to the shop, lay an oven smaller than the one described here, but whose construction was nothing remarkable.
See Breton, Ernest. 1855. Pompeia, decrite et dessine: Seconde edition. Paris, Baudry, p. 234-5.
The vault, which still existed in part in 1854, had by 1870 collapsed.
See Breton, Ernest. 1870. Pompeia, Guide de visite a Pompei, 3rd ed. Paris, Guerin, p. 289.

Rendition of how the oven in the pottery workshop was loaded, watercolour © Guilhem Chapelin.
See Tracing Back the Potters of Pompeii, 11.18.2019, by Laetitia Cavassa. https://news.cnrs.fr/articles/tracing-back-the-potters-of-pompeii

HGE29 Pompeii. September 2013. Room 2. On the left, looking south-east to front side of oven, with remains of vaulted roof.
On the right, detail of the opening for the flue.
Photo courtesy of Laëtitia Cavassa, Bastien Lemaire, Guilhem Chapelin, Aline Lacombe, John-Marc Piffeteau and Giuseppina Stelo.
Photo © Centre Jean Bérard. For full report, see links above or below.

HGE29 Pompeii. 2013. Room 2. Detail of the furnace levels within the firebox.
Photo courtesy of Laëtitia Cavassa, Bastien Lemaire, Guilhem Chapelin, Aline Lacombe, John-Marc Piffeteau and Giuseppina Stelo.
Photo © Centre Jean Bérard.
Part 2: 2012 Excavations Part 3: 2013 Excavations