Part 3: 2013 Excavations
Part 1 Part 2: 2012 Excavations
The following material is taken from the 2013 report of the archaeological activites under the auspices of the French School in Rome.
Reproduced by kind permission of Laëtitia Cavassa, Centre
Jean Bérard. See http://cefr.revues.org/1139
Centre Jean
Bérard (USR 3133 CNRS-EFR), Soprintendenza speciale per i Beni
archeologici di Napoli e Pompei, Ministère des affaires étrangères (Paris).
1. La première
opération de fouilles de l’atelier de potier de la via
dei Sepolcri, 29 (fig. 1), durant laquelle les niveaux de 79 ap. J.-C.
ont été dégagés, a eu lieu en 2012.
Une première
étude avait alors été réalisée nous permettant d’établir le plan de l’ensemble
de la structure et d’en identifier la production, avec la mise au jour de
gobelets en paroi fine crus en phase de séchage lors de l’éruption.
Note : Voir
Chronique des activités archéologiques de l’École française de Rome [En ligne],
http://cefr.revues.org/881 .

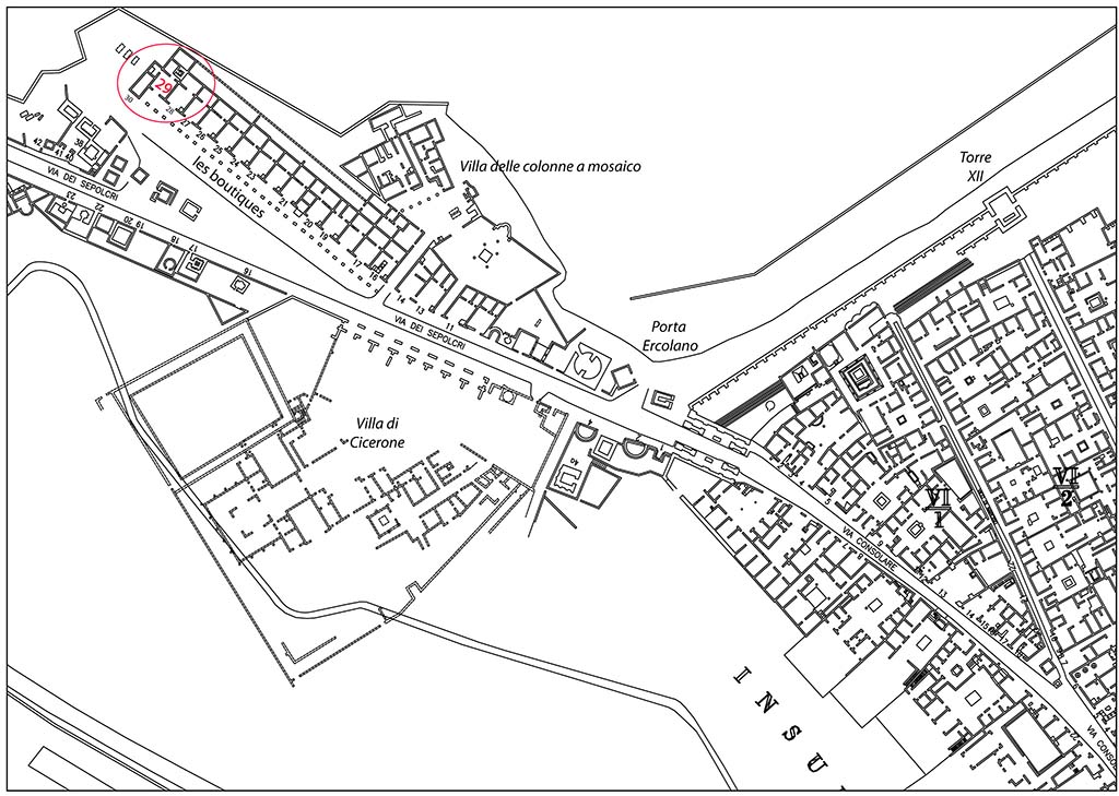
Fig. 1 - HGE29
Pompéi. Plan des boutiques situées le long de la via
dei Sepolcri.
D’après A. Van
der Poel, Corpus Topographicum Pompeianum:
The Rica maps of Pompeii, 1983.
View full size image (1.4 mb).
2. La campagne
2013, qui s’est déroulée du 9 au 27 septembre, nous a permis de définir les
phases d’occupation de la boutique.
Outre
l’identification des différentes productions de cet atelier, les nombreux
éléments découverts nous permettent déjà de dresser une chronologie des
événements et des remaniements qui ont affecté la boutique et le portique
construit en façade, depuis leur création jusqu’à l’éruption de 79 ap. J.-C.
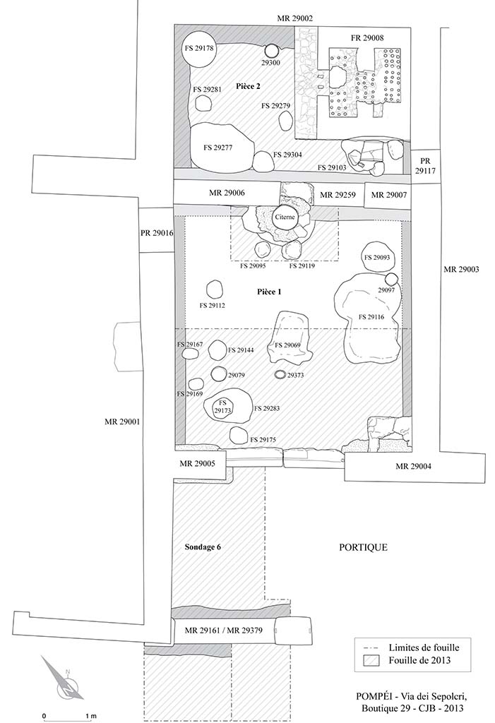
3. En plus des
pièces 1 et 2 partiellement fouillées l’année dernière, un nouvel espace
(sondage 6) a été ouvert lors de cette campagne (fig. 2).

Fig. 2 - HGE29
Pompéi. Plan de la boutique n. 29.
G. Chapelin, B. Lemaire. View full size image (1.1 mb)
4. Ce sondage se
situe devant la boutique 29, le long du mur MR29001, dans l’emprise du
portique.
Il se présente
sous la forme d’un rectangle mesurant 5,20 m du nord au sud et 3,10 m
d’est en ouest, aménageant une surface d’environ 16 m2.
Il offrait la
possibilité d’observer l’espace de circulation du portique, en avant de la
boutique, ainsi que les niveaux qui font le lien entre le portique et la voie
plus au sud, la via Superior.
Ce sondage a
apporté des informations sur la construction du portique et ses remaniements
mais, il n’a pas été possible de l’étendre jusqu’à la voie pour mettre en
évidence les éléments qui palliaient le dénivelé et font le lien entre la voie
et le portique (escalier, rampe).
5. L’état le plus
ancien, partiellement observé en 2012, a été identifié sur l’ensemble de la
boutique (pièces 1 et 2) et probablement au fond du sondage du portique.
Il s’agit de deux
couches sur lesquelles la boutique et le portique ont été fondés.
6. Le plus ancien
niveau identifié, probablement géologique, est une épaisse couche argileuse
jaune (US 29071). Il a été repéré de l’extrémité nord de la boutique
(pièce 2), jusqu’au niveau de l’entrée (pièce 1) et très probablement dans la
partie sud du sondage 6 entre la voie et le portique (US 29405). Cette
couche présente une nette rupture et plonge à partir du tiers sud de la pièce
1.
7. Afin de
combler cette dépression, un niveau de limon sableux noir (US 29072)
semble être installé. Cette couche est composée de sable noir assez grossier et
se poursuit plus au sud sous le seuil, servant probablement de remblai
d’installation au niveau de circulation du portique. Il se pourrait que cet épais
remblai soit retenu au sud par le mur de fondation des arcades du portique,
MR29379, car il n’a pas été observé de l’autre côté de celui-ci. Il s’agira de
vérifier cette hypothèse lors de la prochaine campagne de fouilles.
8. L’ensemble de
la boutique semble directement installé dans les niveaux de l’état précédent.
Il nous a été
possible d’identifier et de fouiller tout ou partie des fondations des trois
principaux murs de la boutique 29 (MR29001, MR29002 et MR29003).
9. Après
l’installation des trois principaux murs de la boutique, le mur MR29259 est
construit, venant s’adosser aux murs est et ouest et séparant deux
espaces : les pièces 1 et 2.
Sa tranchée de
fondation vient recouper celles des deux autres murs (MR29001 et MR29003).
10. L’ensemble de
ces murs a été fondé dans des tranchées assez profondes.
Leur élévation
repose sur une semelle de fondation en blocage, probablement damé, au vu de la
texture très compacte du matériau employé.
Le matériel mis
au jour dans le remplissage des tranchées, bien que peu abondant, permet
d’envisager la construction de la boutique après la seconde moitié du
IIe s. av. J.-C.
Note :
L’étude du matériel étant en cours, toutes les datations fournies dans
l’article sont préliminaires.
11. Les murs
MR29004 et MR29005, formant l’entrée de la boutique, semblent bien postérieurs
et appartiennent probablement à son dernier état.
12. La boutique
et le portique appartenant à un seul programme de construction, les mêmes
constatations sont faites pour le sondage 6 dans lequel les niveaux de
fondation du mur MR29279, soutenant les arcades du portique et maintenant en
place le niveau de circulation de ce dernier ont été
atteints.
Ce mur repose sur
une semelle de fondation qui semble être du même type que celles observées pour
les murs de la boutique.
Le remplissage
semble également être de même nature que pour les autres tranchées. Peu de matériel
a été mis au jour.
Entre autres un
bord de bol à vernis noir donnerait un terminus post quem du IIIe-IIe s.
av. J.-C.
13. Une fois les
boutiques et le portique construits, une première utilisation des lieux remontant
à un état antérieur à la construction du four et à l’existence de l’atelier de
potier est attestée par l’installation de fosses.
14. Dans la
première pièce, au sud-ouest du seuil, une fosse (FS29283) creusée dans un
niveau de remblai est installée.
Son comblement
était composé de nombreux fragments de tegulae, d’une amphore punique de type Maña C2c, ainsi que d’un bord d’assiette en sigillée locale
de type Conspectus 1.1 fournissant une datation dans la seconde moitié du
Ier siècle av. J.-C. Il s’agit d’une des seules installations
antérieures au sol bâti (SL29062) et aux grands remaniements qui auront lieu
par la suite.
15. Dans la pièce
2, plusieurs fosses antérieures à l’installation du four ont été fouillées
(FS29304, FS29277, FS29281, FS29178, FS29103), dont le remplissage, riche en
matériel céramique, fournit une datation autour de la fin du IIe siècle avant
notre ère.
16. Cet état
correspond à un grand réaménagement de la boutique et peut-être du niveau de
circulation du portique. En effet, c’est à cette époque que le four, la voûte
maçonnée nord-sud (VT29020) soutenant le premier étage et la citerne semblent
être installés.
17. L’installation
du four et de la voûte dans la pièce 2, semblent appartenir à un seul programme
de construction : la voûte a été spécialement aménagée de façon à laisser
passer un conduit relativement large, permettant aux fumées générées par le
four de s’échapper en traversant les pièces de l’étage jusqu’au système de
couverture de l’édifice (fig. 3).

Fig. 3 - HGE29
Pompéi. Photo du four et détail de son système d’évacuation des fumées.
Photo © Centre Jean Bérard. View full size image (1.8 mb)
18. Le four est
construit en blocs de tuf sur ses façades extérieures, à l’exception des
passages qui mènent à la chambre de chauffe et au laboratoire, qui sont
exclusivement réalisés en tegulae retaillées.
L’intérieur du
four est également composé de tegulae, dont les qualités réfractaires sont plus
appropriées (fig. 4).
Ses murs reposent
sur des fondations coulées en mortier d'environ 20 à 25 cm, remplissant
des tranchées peu profondes qui recoupent les états antérieurs.

Fig. 4 - HGE29
Pompéi. Le four vu de l’ouest.
Photo © Centre Jean Bérard. View full size image (2.0 mb)
19. Pour des
raisons techniques, la fouille de cette année n’a pas pu concerner l’ensemble
des niveaux présents dans la chambre de chauffe.
Cependant, il a
été possible de fouiller l’alandier (0,85 sur 0,70 m), présentant les
mêmes niveaux que ceux de la chambre de chauffe, ce qui a permis d’avoir une
coupe stratigraphique de l’ensemble des niveaux de fonctionnement du four,
depuis sa fondation jusqu’à son état final de 79 de notre ère.
20. Il s’agit du
sol bâti (SL29367), mesurant 10 cm d’épaisseur et constitué de blocs de
basalte et de blocs de remploi liés à la terre (fig. 5).

Fig. 5 - HGE29
Pompéi. Détail des niveaux de construction du four à l’intérieur de
l’alandier.
Photo © Centre Jean Bérard. View full size image (1.3 mb)
21. Ce sol
s’enchâsse légèrement sous les murs du four, indiquant qu’il s’agit d’un seul
programme de construction et non de plusieurs phases et réaménagements. Les
blocs de remploi (8 à 10 cm d’épaisseur) sont des fragments d’un sol
solidement bâti présentant plusieurs couches (des galets, un mortier grossier
et une couche de mortier plus fin). Des éléments identiques ont été identifiés
dans la voûte de la pièce, ce qui pourrait être un indice supplémentaire de la
contemporanéité de leur construction.
22. Dans le reste
de la pièce, un niveau de circulation (SL29135), en connexion avec le sol de
l’alandier (SL29367) recouvrant les fosses de l’état précédent est installé.
Son caractère très charbonneux correspond très probablement à l’utilisation du
four.
23. L’installation
de la citerne dans la pièce 1, entraîne la condamnation du passage entre les
deux pièces qui se trouve par conséquent décalé vers l’est. Un sol bâti
(SL29062) est également mis en place. Ce dernier est creusé d’un nombre
important de fosses, dont certaines sont clairement associées à l’installation
d’amphores, « fichées » dans le sol. La fonction de ces amphores
comme éléments de stockage (ou autres) n’est pas bien identifiée car elles ont
souvent été détruites et parfois mélangées à d’autres déchets, afin de combler
les fosses dans un état postérieur (état III).
Note : Cinq
fosses ont été mises au jour au total : FS29112, FS29173, FS29144, FS29095
et FS29119. Les deux dernières ont été fouillées durant la campagne de 2012.
24. Cet état est caractérisé
par la condamnation de la citerne et le comblement des amphores du précédent
état.
25. Suite à une dégradation progressive ou à un événement plus
important comme un tremblement de terre, une partie de la citerne s’effondre.
Une brèche
relativement importante se forme à l’ouest du mur de la citerne, fragilisant
cette dernière et détériorant probablement la qualité de l’eau stockée.
Elle est ensuite
bouchée dans sa partie supérieure au niveau des assises maçonnées, par la mise
en place de trois gros fragments de panse d’amphore italique (fig. 6).

Fig. 6 - HGE29
Pompéi. La citerne et le bouchage de la brèche.
Photo © Centre Jean Bérard. View full size image (1.6 mb)
26. Les fosses
observées dans l’état précédent, fonctionnant avec le sol SL29062, sont
comblées lors de cet état ou durant le suivant (état IIIB), correspondant
à la création d’un dernier niveau de sol.
27. Le comblement
de ces fosses a restitué une quantité de matériel très intéressant, et plus
particulièrement des fragments de céramique à paroi fine surcuits témoins de la
production.
28. Ces données
sont tout à fait déterminantes car elles permettent de reconstituer en partie
l’histoire de l’atelier.
En l’absence de
données chronologiques précises sur la construction même du four, la présence
de ces surcuits permet d’établir un terminus post quem.
Il s’agit pour
l’essentiel de gobelets à décors sablés dont la production est attestée sous
Tibère.
Ces gobelets sont
surcuits et ont été jetés entiers dans ces fosses (fig. 7 et 8).

Fig. 7 - HGE29
Pompéi. Gobelets surcuits, en céramique à paroi fine mis au jour dans le
remplissage des fosses de la pièce 1.
Photo © Centre Jean Bérard. View full size image (0.9 mb)

Fig. 8 - HGE29
Pompéi. Gobelets en céramique à paroi fine, à décor sablé, mis au jour dans le
remplissage des fosses de la pièce 1.
Dessins A. Lacombe. View full size image (0.3 mb)
29. Ce dernier
état se caractérise par le recouvrement des fosses de l’état précédent et de la
citerne, dans le but d’installer un dernier niveau de sol dont il ne nous reste
que les éléments présents dans la partie sud-ouest de la pièce 1.
La conservation
des couches de remblais de nivellement et du niveau de sol associé s’explique
par l’existence de la structure bâtie SB29033, fouillée l’année passée.
Cette structure,
principalement réalisée en fragments de tegulae et fonctionnant avec l’amphore
29079, semble correspondre au dernier sol installé dans la boutique (SL29401).
30. La fouille de
cette année a notamment permis de réviser un point important.
En effet, dans
l’angle sud-est de la pièce 1, le niveau 29120 n’est pas un reliquat du dernier
sol de la boutique, mais la semelle de fondation du mur MR29004.
Un niveau
identique (US 29182) se trouve de l’autre côté du seuil, servant de
semelle de fondation au mur de façade de la boutique, MR29005.
L’ensemble des
semelles de fondation présente une technique de construction uniforme avec un
lissage de leur surface au mortier.
31. Le dernier
sol correspondant au niveau de 79 ap. J.-C., a
donc totalement disparu, probablement depuis son dégagement lors des fouilles
des siècles antérieurs et son érosion à l’air libre.
Seule la
structure en tuiles SB29033 permet d’observer ce niveau, ainsi que les deux
semelles de fondations précédemment décrites.
En effet, ces
fondations coulées sont plus élevées que le sol SL29062 de l’état II, prouvant
bien qu’elles ont été réalisées dans un sol plus haut, aujourd’hui disparu.
32. À ce dernier
état, appartient également la base de l’escalier (BS29059) située dans l’angle
sud-est de la pièce 1 permettant d’accéder au premier étage, car elle repose
sur la semelle de fondation du mur MR29004 (US 29120).
Cependant, même
si cette structure n’a pas été démontée pour des raisons de conservation, il est
possible que les niveaux observés sous cette base lui servant de fondation,
aient également pu appartenir à une base d’escalier d’un état antérieur.
33. Le même
phénomène semble s’être produit dans l’espace de circulation du portique.
En effet, le sol
observé (SL29177) correspond probablement au pendant du sol SL29062 de la pièce
1 et se trouve lui aussi plus bas que les fondations coulées des murs MR29004
et MR29005.
Cela prouve bien
que les fondations de ces murs ont été creusées dans un niveau aujourd’hui
disparu.
De plus, il est à
noter que ces murs sont les plus tardifs de la boutique, comme l’attestent leur
fondation, ainsi que leur construction en blocs de tuf et en tegulae
retaillées.
Le remaniement de
ces murs de fermeture se retrouve dans les autres boutiques du portique et
semble donc correspondre à un programme de réaménagements tardifs de cet
ensemble architectural.
34. Le dernier
état du sol de la pièce 2 (SL29031) a été mis en évidence l’année dernière.
Il présentait une
texture compacte malgré son aspect très cendreux, probablement en raison des
cendres issues du four.
C’est sur ce
dernier niveau que reposaient les vases crus, prêts à être cuits dans le four,
retrouvés dans l’angle sud-ouest de la pièce sous une fine couche de lapilli
encore intacte, provenant de l’éruption de 79.
35. La campagne
de fouille de septembre 2013 a apporté des premiers éléments de datation
concernant la fondation de la boutique 29 et donc de l’ensemble du portique et
de ses remaniements postérieurs.
Elle a aussi
permis d’encadrer chronologiquement le fonctionnement et la production de
l’atelier de potier de la Porta Ercolano.
En l’état actuel
de l’étude du matériel céramique, il semble probable que l’atelier fonctionnait
depuis l’époque de Tibère, voire un peu avant.
Quant à la
production, seuls les vases en céramique à paroi fine sont pour le moment
clairement attestés comme ayant été produits dans l’atelier.
Laëtitia Cavassa,
Bastien Lemaire, Guilhem Chapelin, Aline Lacombe, John-Marc Piffeteau
et Giuseppina Stelo,
Pompéi. L’atelier
de potier de la via dei Sepolcri, 29 », Chronique
des activités archéologiques de l’École française de Rome [En ligne], Les cités
vésuviennes. Mis en ligne le 06 mars 2014,
Droits d’auteur
© École française
de Rome
Part 1 Part 2: 2012 Excavations