
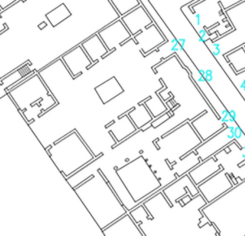
VI.17.27 Pompeii.
Plan of VI.17.27, 28, 29 and 30.
Based on Dobbins, J. J. and Foss, P. W., 2008. The World of Pompeii. Oxford: Routledge, CDRom.
According to
Fiorelli –
VI.17.27-30, “La casa appresso, deformata per
l’aggiunta di fabbriche moderne, aveva oltre il vestibolo ed il protiro due
grandi celle ai lati della porta, con discesa dalla via nella sottostante cantina.
Il suo atrio tuscanico, tenendo tre cubicoli ed un’ala da ciascun lato,
mostrava in fondo il tablino, cui erano adiacenti un oecus e due cubicoli,
preceduti da una cella che loro serviva di vestibolo.
Dall’ala meridionale entravasi poi nel giardino, il
cui portico schiudeva il varco ad un’esedra, ad un triclinio, ad una apotheca,
alla cucina, ad una gradinata per montare di sopra, e ad altre celle annesse,
da una delle quali potevasi entrare nell’atrio, e da altra pervenire alla
fauce, che menava alla porta secondaria della casa.”
See Fiorelli, G.
(1875). Descrizione, (p.434)
See Pappalardo, U., 2001. La Descrizione di Pompei per Giuseppe Fiorelli (1875). Napoli: Massa Editore. (p.159)
(translation -
“VI.17.27-30. The house, deformed by the addition of a modern building, had apart from the vestibule and the entrance corridor, two large rooms on either side of the doorway, with descent from the roadway into the cellar below. Its Tuscan atrium, with three cubicula and an ala on each side, showed the tablinum at the rear, adjacent to which were an oecus and two cubicula, preceded by a room that was used as a vestibule.
From the south ala, one could enter into the garden area, whose portico had the doorway to an exedra, and to a triclinium, and to an apotheca, to the kitchen, and to a staircase to go up above, and to other adjoining rooms, from one of which one could enter into the atrium, and from the other to the fauces, which lead to the secondary doorway of the house.”

VI.17.27 Pompeii. Sketch by Lesueur of plan, with house entrance on west side of Via Consolare.
See
Lesueur, Jean-Baptiste Ciceron. Voyage en Italie de Jean-Baptiste Ciceron
Lesueur (1794-1883), pl. 20.
See Book on INHA reference INHA NUM PC 15469 (04) « Licence Ouverte / Open Licence » Etalab

VI.17.27 Pompeii, centre left. September
2021.
Looking south-west on Via Consolare towards
entrances, with VI.17.28, on left. Photo courtesy of Klaus Heese.

VI.17.27 Pompeii. July 2010. Looking south towards entrance doorway on west side of Via Consolare. Photo courtesy of Michael Binns.

VI.17.27 Pompeii. April 2019.
Looking towards entrance doorway on west side of Via Consolare. Photo courtesy of Rick Bauer.

VI.17.27 Pompeii. September 2021.
Looking west through entrance doorway towards
atrium with mosaic floor and impluvium. Photo courtesy of Klaus Heese.

VI.17.27 Pompeii. May 2006. Floor mosaic preserved in atrium under a raised floor.

VI.17.27 Pompeii. September 2021.
Looking
towards south-west corner of atrium, with remaining painted decoration. Photo
courtesy of Klaus Heese.

VI.17.27 Pompeii. May 2005. Looking through entrance doorway towards atrium.

VI.17.27 Pompeii. 1966.
Entrance doorway, looking towards north side of atrium with upper storey columned balcony.
Photo by Stanley A. Jashemski.
Source: The Wilhelmina and Stanley A. Jashemski archive in the University of Maryland Library, Special Collections (See collection page) and made available under the Creative Commons Attribution-Non Commercial License v.4. See Licence and use details.
J66f0547

VI.17.27 Pompeii. September 2004. Looking west to entrance doorway and atrium.
According to CTP-
“the form of the fifth skeleton (made into a plaster model by Fiorelli) discovered in 1868, was conserved at the Scuola archeologica, VI.Ins.Occ.27, for which this structure has been given a similar denomination”.
(The names Casa dei cadaveri di gesso, and Casa degli scheletri were both used for this house, which are similar names to those sometimes used for VI.17.23-25, which according to Breton, was also known as “Maison des cadavres moules” deriving from the first four skeletons made into plaster models by Fiorelli on 5th February 1863, and which were then conserved there).
See Van der Poel, H. B., 1983. Corpus Topographicum Pompeianum, Part II. Austin: University of Texas. (p.268)

Plaster-cast of skeleton discovered in 1868, and originally displayed in VI.17.27 Pompeii.
According to Breton –
“..... the fifth plaster cast made in 1868 and not yet shown to the curious tourists, is conserved in one of the rooms of the School of Archaeology, and reproduced here. This unfortunate was found in a room on the left of the atrium in the House of Gavius Rufus: six other skeletons were with him. This moulding, the best made of all except for his left leg that could not be reproduced, it is also one whose expression is the most terrible; it is the personification of his despair at his last paroxysm.”
See Breton, Ernest. 1870. Pompeia, Guide de visite a Pompei, 3rd ed. Paris, Guerin. (p.272-3)

Photograph of the human plaster-cast found on 12th March 1868, in VII.2.16 Pompeii. Photo courtesy of Rick Bauer.
This cast, known as the Fifth Victim, was placed in the Archaeological School, and it was here that Ernest Breton saw it, and described
“This unfortunate was discovered lying on his stomach in a room to the left of the atrium of the House of Gavius Rufus.
Six other skeletons were near him” from Breton, 1869. (See VII.2.16, House of Gavius Rufus.).
See Dwyer, E., 2010. Pompeii’s
Living Statues. Ann Arbor: Univ of Michigan
Press. (p. 80)
See Breton,
Ernest. 1870. Pompeia, Guide de visite a
Pompei, 3rd ed. Paris, Guerin.
According to
Fiorelli –
“Sette scheletri umani furono trovati in questo
luogo, uno dei quali bocconi ed in atto di supremo sforzo, per emettere il
respiro soffocato dalle esalazioni vulcaniche, fu da ma rivestito delle forme
del suo corpo, ricavandole dalla impronta che vi era rimasta nella cenere.”
See Fiorelli, G.
(1875). Descrizione, (p.187)
See Pappalardo, U., 2001. La Descrizione di Pompei per Giuseppe Fiorelli (1875). Napoli: Massa Editore. (p.81)
(translation – “Seven human skeletons were found in this place, one of which was face down and in the process of making his last effort to emit his breath choked by volcanic fumes. He was clothed by me in his bodily forms by obtaining them from the impression that remained in the ashes.”