
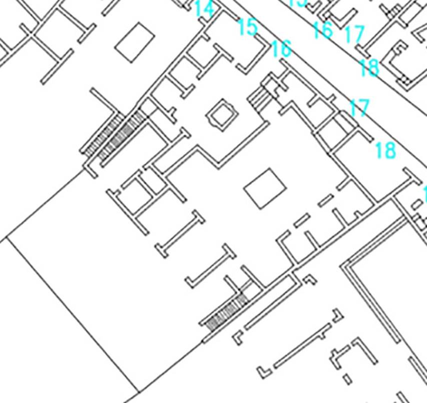
VI.17.15 shop, 16, 17, combined plan.
Plan courtesy of Dobbins, J. J. and Foss, P. W., 2008. The World of Pompeii. Oxford: Routledge (CD-ROM).
According to
Fiorelli –
VI.17.15-18 –
“Due case unite costituivano forse l’abitazione di una sola famiglia. Esse avevano due ingressi separati sulla
strada e due botteghe, stando in relazione tra loro per gli atrii, entrambi
tuscanici, e ciascuno con tre cubicoli da un solo lato.
La prima inoltre
no.16, teneva accanto allo ingresso la cucina, poco piu innanza la gradinata
che la metteva in communicazione con la casa seguente, e nel fondo il
triclinio, una seconda scalinata, e due oeci.
La seconda, casa
no.17, che sembra la piu nobile, conteneva le ali, il tablino, due fauci, ed
un’altra gradinata di discesa.
L’edificio poi
era terminato nel piano piu alto con un loggiato, che ora era distrutto.
In uno dei
pilastri che fronteggiano la strada leggevasi:
M . CERRINIVM
AED . SALINIENSIS
ROG ”)
See Fiorelli, G. (1875). Descrizione, (p.433)
See Pappalardo, U., 2001. La Descrizione di Pompei per Giuseppe Fiorelli (1875). Napoli: Massa Editore. (p.159)
(translation –
"Two united houses constituting perhaps the dwelling
of a single family. They had two separate entrances on the roadway and two
shops, linked to the atriums, both atriums were Tuscanic, and each with three
cubicula only on one side.
The first No. 16, had the kitchen near to the entrance
doorway, nearby were the steps linking with the next house, and at the rear was
the triclinium, a second stairway, and two oeci.
The second, house No. 17, which seemed the most noble,
contained ala, the tablinum, two corridors, and another
steps leading down.
The building was finished on the highest floor with a
loggia, which was now destroyed.
In one of the pillars that fronted onto the roadway, the
following could have been read -
M . CERRINIVM
AED . SALINIENSIS
ROG ”)

VI.17.9, on left with letter G, then 10, then 13, followed by 16 linked to 17 in centre, and 23-25, on right.
Part of a plan by Francesco La Vega, c.1800-1810. Now in Naples Museum.
DAIR 76.1262. Photo
© Deutsches Archäologisches Institut, Abteilung Rom, Arkiv.

VI.17.9-27 Pompeii. Detail from 1827 plan by Ing. del. R: Officio Topografico, Gaspare Marchesi.
Now in the
Istituto Geografico Militare, Corpo di Stato Maggiore, Sezione di Napoli,
Cartella 82.24.
See Kockel V.
2005. Un capitolo dimenticato della cartografia di Pompei Gaspare Marchesi e
il Reale Officio Topografico di Napoli:
Rivista di Studi
Pompeiana 16, pp. 11-36.

VI.17.26, 25, 24, 23, on left, followed by house at 17, etc. which Piranesi described as house with three atriums.
Drawing by Piranesi, which does not agree with La Vega’s plan, or of Marchesi, above, or what can be seen “on the ground today”.

VI.17.16 Pompeii. September 2021. Entrance doorway on
west side of Via Consolare. Photo courtesy of Klaus Heese.

VI.17.16 Pompeii. May 2011. Looking west to entrance doorway.

VI.17.16 Pompeii. December 2005. Entrance doorway, looking west into atrium.

VI.17.16 Pompeii. September 2021. Looking west along entrance
corridor/fauces towards atrium. Photo courtesy of Klaus Heese.

VI.17.16 Pompeii. December 2004. Looking west along fauces towards atrium.
In the rear wall are two blocked doorways of which the one (on the right) would have led into a corridor leading to steps down.

VI.17.16 Pompeii. September 2021. Looking
west towards impluvium in atrium. Photo courtesy of Klaus Heese.

VI.17.16 Pompeii. May 2005. Impluvium in atrium.

VI.17.16 Pompeii. September 2021.
South
side of fauces/entrance corridor, with steps to VI.17.17 at rear. Photo
courtesy of Klaus Heese.

VI.17.16 Pompeii. May 2005. South side of fauces, with steps to VI.17.17 at its rear.

VI.17.16 Pompeii. September 2021.
Site of kitchen,
with cellars below? The doorway to the atrium of VI.17.17 is on the right. Photo courtesy of Klaus Heese.

VI.17.16 Pompeii. May 2005. Site of kitchen, with cellars below?
At the rear, above, would be the doorway into the atrium of VI.17.17.

VI.17.16/17 Pompeii. May 2005. Looking south, to doorway below VI.17.17, cellars?

VI.17.16/17 Pompeii. May 2011. Part of the lower area, linked with VI.17.17, looking east.

VI.17.16 Pompeii. May 2011. Looking west across south side of atrium.

VI.17.16 Pompeii. May 2011. Looking north-west across impluvium in atrium.

VI.17.16 Pompeii. May 2005. Looking towards north-west corner of atrium.

VI.17.16 Pompeii. May 2011. Looking towards north side of atrium.

VI.17.16 Pompeii. May 2011. Looking towards north-east corner of atrium.
In the centre right, the doorway into the shop at VI.17.15 can be seen, together with its rear room and its entrance doorway.
The entrance corridor of VI.17.16 leading out onto Via Consolare can be seen on the right.

VI.17.16 Pompeii. May 2011. Looking east towards Via Consolare, from entrance corridor.
For details of excavation from Fiorelli G., 1860. Pompeianarum antiquitatum historia, Vol. 1: 1748 - 1818, Naples, 1,1,
see page at VI.17.25, parts 2 and 3.