Villa rustica excavated by Ing. Gennaro Matrone in the fondo owned by him in contrada Spinelli, Scafati.
It was south of 27th access to the Sarno canal, 1500m to the east from the walls of Pompeii.
Presso le
sponde del Sarno, a m 1500 ad Est dalle mura di Pompei, si trova una zona dove
per l’assenza quasi totale dello strato di cenere, le rovine visibili sono
state scavate molte volte abusivamente.
Towards the banks of the Sarno, 1500m to the east from the walls of Pompeii, a zone was found where, by the almost total absence of ash, the visible ruins had been excavated illegally many times.
See Fabbricotti,
E., 1976. I bagni nelle prime ville romane: Cronache Pompeiane, 2, p.
44.
The original excavations were reported by Matteo della Corte in 1923 as part of a report on eleven private excavations which had taken place a decade or two earlier.
The villa was rediscovered in 1993 during excavations reported by Marisa De Spagnolis Conticello.
Both reports are summarised on our page with the newest 1993 excavation first.
According to Carrington, the north side of the cortile had wall paintings of the fourth style.
The owner seemed not to have been much in residence, since no water was laid on, but rain-water was collected.
See Carrington, R., 1931. Studies in the Campanian Villae Rusticae: Journal of Roman Studies, 21, p.121, n: 35 and note 3.
Notizie degli Scavi di Antichità, 1923, pp.280ff.
Carrington, R., 1931. Studies in the Campanian Villae Rusticae: Journal of Roman Studies, 21, p.121, n: 35 and note 3.
Casale A., Bianco
A., Primo contributo alla topografia del suburbio pompeiano: Supplemento
al n. 15 di ANTIQUA ottobre-dicembre 1979, 39, p. 37, fig. 14.
Crova, B.,
1942. Edilizia e tecnica rurale di
Roma antica, Milano, p. 181, fig. 31.
Day, J., 1932. Agriculture in the life of Pompeii: Yale Classical Studies, 3, tav. A, B, C, n. 35.
De Spagnolis
Conticello, M., 1993. Di due ville rustiche rinvenute a Scafati (SA), in via
Spinelli ed in via Poggiomarino in Rivista di Studi Pompeiani, Vol. VI,
1993-94 p.137-146.
De Spagnolis
Conticello, M., 1993. Osservazioni sulle Fasi Edilizie di Alcune Ville
Rustiche di Scafati, Suburbio Orientale di Pompei, Seppellite dalla eruzione
Del 79 D.C. in Archäologie
Und Seismologie (DAIR) Colloquium Boscoreale 1993.
Fabbricotti, E.,
1976. I bagni nelle prime ville romane: Cronache Pompeiane, 2, p. 44,
fig. 10.
Garcia y Garcia L., 2017. Scavi Privati nel Territorio di Pompei. Roma: Arbor Sapientiae, no. 50, p. 365-373.
Rostovzev, M.,
1973. Storia economica e sociale dell'Impero Romano, Firenze, 5° ediz.,
p. 34, note 26, n. 35.
Van der Poel, H. B., 1981. Corpus Topographicum Pompeianum, Part V. Austin: University of Texas. n. 35, p. 22, and plan.
Winkes, R., 1982. Roman Paintings and Mosaics: Catalogue of the Classical Collection. RISD Museum of Art, Providence R.I.
Costruendosi
una palazzina di civile abitazione a Scafati (SA), in via Spinelli (nella loc.
Ventotto), venivano alla luce, il 29 settembre 1993, una serie di strutture
romane in opus incertum di calcare del Sarno, con conci di pietra lavica,
rivestite d'intonaco bianco e costituenti la fronte esterna d'una villa rustica
suburbana dell'ager Pompeianus, nella periferia orientale dell'antica città,
seppellita dall'eruzione del 79 d.C., sotto strati sovrapposti di lapillo
chiaro e di (tuono) cenere (fig. 1).
During building a residential building in Scafati (SA), in via Spinelli (in
the locality of Ventotto), on 29 September 1993, a series of Roman structures
in opus incertum of Sarno limestone, with ashlars of lava stone, came to light, covered with white
plaster and forming the external front of a rustic suburban villa of the ager
Pompeianus, on the eastern outskirts of the ancient city, buried by the
eruption of 79 AD., under superimposed layers of light lapillus and (thunder)
ash (fig. 1).
Vedi/See Marisa
De' Spagnolis Conticello. Di due ville rustiche rinvenute a Scafati (SA), in
via Spinelli ed in via Poggiomarino in Rivista di Studi Pompeiani, Vol. VI,
1993-94 p.137.

Scafati, via
Spinelli. Veduta generale delle strutture della villa rustica.
General view of
the structures of the rustic villa.
See Marisa De'
Spagnolis Conticello. Di due ville rustiche rinvenute a Scafati (SA), in via
Spinelli ed in via Poggiomarino in Rivista di Studi Pompeiani, Vol. VI,
1993-94 p.138 Fig. 2.
Tali
strutture, disposte in senso NO-SE, presentavano una lunghezza accertata di m
33,40 nel lato SO, essendosi trovati entrambi gli angoli di tali muri, mentre,
nel lato NE, non c'è stato possibile ottenere altrettanta sicurezza, poiché i
muri si dirigevano verso una proprietà finitima nella quale non ci è stato dato
di continuare l'esplorazione (fig. 2).
Non essendo
stato possibile approfondire lo scavo, dato che esso non costituiva autonoma iniziaetiva della Soprintendenza, ma era frutto della
collaborazione del proprietario del terreno, in rapporto con la sua esigenza
costruttiva, non abbiamo potuto accertare l'altezza cui le murature c'erano
pervenute, non avendo potuto scavare fino al piede di esse.
Quanto abbiamo
potuto portare alla luce, si trovava a m 1,70 sotto il piano di campagna e
continuava per una profondità finora accertata di m 2,70, e possiamo ipotizzare
che esse siano effettivamente conservate fino ad una profondità di circa m
3,50. Il crollo dei muri è avvenuto verso il lato SE.
Lungo il muro
NE-SO, a m 3,00 dal suo angolo NE, abbiamo rinvenuto un'apertura, della quale
si conserva l'impronta dello stipite sinistro, con parte dello architrave e
della muratura ad esso sovrastante, nella quale sono inclusi, ovviamente
riutilizzati, ampi frammenti di spesso cocciopesto (fig. 3).
These structures, arranged in a NW-SE direction, had an ascertained length
of 33.40 m on the SW side, having found both corners of these walls, while, on
the NE side, it was not possible to obtain as much precision, since the walls
were heading towards a finished property where we were not allowed to continue
the exploration (fig. 2).
As it was not possible to deepen the excavation, since it did not
constitute an autonomous initiative of the Superintendency,
but was the result of the collaboration of the owner of the land, in
relation with their construction need, we could not ascertain the height which
the walls reached, having not been able to dig up to the foot of them.
What we were able to unearth was found at 1.70 m below the ground level and
continued for a depth ascertained up to now of 2.70 m, and we can hypothesize
that they are actually preserved up to a depth of
about 3.50 m. The collapse of the walls occurred towards the SE side.
Along the NE-SW wall, 3.00 m from its NE corner, we found an opening, of
which the imprint of the left jamb is preserved, with part of the architrave
and the masonry above it, in which they are obviously included reused, large
fragments of thick cocciopesto (fig. 3).
Vedi/See Marisa
De' Spagnolis Conticello. Di due ville rustiche rinvenute a Scafati (SA), in
via Spinelli ed in via Poggiomarino in Rivista di Studi Pompeiani, Vol. VI,
1993-94 p.137.

Pianta della
villa rustica di via Spinelli.
Alla luce dei
nuovi dati emersi attualmente, la costruzione appare cosi presentare una struttura rettangolare senza
corpi aggettanti, per lo meno limitatamente ai lati ovest e sud (fig. 9).
Appare, pertanto, non più valida la supposizione del Carandini (fig. 10), che,
per la parte della villa scavata dal Della Corte, ipotizzava una cella vinaria
aggettante dal resto dell'edificio, e ben maggiore di quella che sarebbe stato
logico immaginare terminasse sull'asse del perimetro occidentale della
costruzione.
In the light of the new data currently emerging, the building thus appears
to have a rectangular structure without projecting parts, at least limited to
the west and south sides (fig. 9). Therefore, it appears Carandini's
assumption is no longer valid (fig. IO), who, for the part of the villa
excavated by Della Corte, assumed a wine cella projecting from the rest of the
building, and much greater than what it would have been logical to imagine
ending on the axis of the western perimeter of the building.
See Marisa De'
Spagnolis Conticello. Di due ville rustiche rinvenute a Scafati (SA), in via
Spinelli ed in via Poggiomarino in Rivista di Studi Pompeiani, Vol. VI,
1993-94 p.142 Fig. 9.

Pianta della
villa rustica di via Spinelli secondo la ricostruzione di A. Carandini.
See Marisa De'
Spagnolis Conticello. Di due ville rustiche rinvenute a Scafati (SA), in via
Spinelli ed in via Poggiomarino in Rivista di Studi Pompeiani, Vol. VI,
1993-94 p.142 Fig. 10.
See Casale A.,
Bianco A., Primo contributo alla topografia del suburbio pompeiano:
Supplemento al n. 15 di ANTIQUA ottobre-dicembre 1979, no.39, fig. 14.
Sempre nella
nostra località Spinelli, a sud del portellone 27 del Canale Sarno, il Della
Corte ha rinvenuto un'altra villa rustica. La villa è stata localizzata, dal
Casale-Bianco, nella proprietà degli eredi della sig.ra Livia Matrone.
Esaminando i
vari rinvenimenti della zona, ci ha vivamente sorpreso che, anche l a nostra villa dalle ventuno finestre, venuta
fortunosamente alla luce, ricadesse nella medesima contrada Spinelli, a sud del
portellone 27 del Canale Sarno, e sempre nella proprietà degli Eredi Matrone,
in cui il Della Corte aveva messo in luce una villa rustica. L'ipotesi piu naturale appariva dunque che quella da noi rinvenuta,
fosse solo una parte della piu vasta villa scavata
dal Della Corte.
L'ipotesi
appariva confermata dalla perfetta sovrapponibilità delle finestre feritorie, senza dubbio relative ad una cella vinaria, sia
nella pianta del Della Corte, che nella nostra, per cui appariva chiaro che noi
avevamo avuto la fortuna di esplorare, nel 1993, una parte che, al tempo del
Della Corte, non era stata finita di scavare della medesima villa, e che con
essa perfettamente si saldava. La nostra villa Spinelli era già stata scavata
da Matteo Della Corte, che ne ha dato una pianta, dalla quale si evince che il
lato occidentale era piu lungo di circa m 2,00
rispetto alle precedenti ricordate (controllare).
Tali misure,
tuttavia, potrebbero anche es sere state alterate nella riduzione del disegno
per la sua stampa nel volume. Esaminando, pertanto, la planimetria della villa,
ci è stato, cosi, possibile provare che l a parte dell'edificio non esplorata dal Della Corte
fosse, appunto, quella relativa all'angolo sud-occidentale della villa
medesima, che doveva comunque comprendere, la parte restante della cella
vinaria, quella da noi rinvenuta, che presentava, a sud di essa, alcuni altri
ambienti e, su una parete, la serie delle ventuno finestre.
Quanto mai
interessante c'è sembrato constatare che le strutture venute in luce nel I 993,
sia pur di cosi limitata estensione, ci hanno permesso
d'integrare la planimetria della villa precedentemente esplorata,
permettendoci, inoltre, di proporre alcune sommesse osservazioni.
Also in our località Spinelli, to the south of
the gate 27 of the Sarno Canal, Della Corte found another rustic villa. The
villa was located, by Casale-Bianco, in the property of the heirs of sig.ra Livia Matrone.
Examining the various finds in the area, we were deeply surprised that even our villa with twenty-one windows, which fortunately came to light, fell in the same Spinelli district, south of the 27 gate of the Sarno Canal, and also in the property of the Matrone heirs, in which Della Corte had highlighted a rustic villa. The most natural hypothesis therefore appeared that the one we found was only a part of the larger villa excavated by Della Corte.
The hypothesis was confirmed by the perfect superimposition of the slit windows, undoubtedly related to a wine cell, both in the Della Corte plan and in ours, so it was clear that we had had the good fortune to explore, in 1993, a part that at the time of Della Corte, the excavation of the same villa had not been finished, and which was perfectly joined to it. Our Villa Spinelli had already been excavated by Matteo Della Corte, who gave it a plan, which shows that the western side was about 2.00 m longer than the previous ones (check).
These measurements, however, could also have been altered in the reduction of the drawing for its printing in the volume. Therefore, by examining the plan of the villa, it was possible to prove that the part of the building not explored by Della Corte was, in fact, that relating to the south-western corner of the villa itself, which must have included the the remaining part of the wine cell, the one we found, which featured, to the south of it, some other rooms and, on one wall, the series of twenty-one windows.
It seemed very interesting to us to note that the structures that came to
light in 1993, albeit of such limited size, allowed us to integrate the plan of
the villa previously explored, allowing us, moreover, to propose some subdued
observations.

Scafati, via
Spinelli. Particolare delle finestre feritoie della cella vinaria.
Detail of the
slit windows of the cella vinaria.
See Marisa De'
Spagnolis Conticello. Di due ville rustiche rinvenute a Scafati (SA), in via
Spinelli ed in via Poggiomarino in Rivista di Studi Pompeiani, Vol. VI,
1993-94 p.140 Fig. 6.
Excavations undertaken by private citizens in the Pompeian territory.
Ten years ago, by commission expressly from sig. Superintendent prof. Vittorio Spinazzola, I had to prepare an extensive report, accompanied by numerous photographs, plans and drawings on eleven private excavations of which no news had been given yet. But now that every investigation to find it has been in vain, so it must be considered as definitively lost, and now the Soprintendenza considers that gap must be filled, not without pain, I have redone the work already completed and with this and other subsequent reports, I will give news of the precious topographical antiquarian material, unearthed in the excavations.
(signed Matteo Della Corte).
See Notizie degli Scavi di Antichità, 1921, p. 416, (footnote 1)
IX.
Rustic Villa excavated by sig. ing. Gennaro Matrone in a fondo he owned located in contrada Spinelli (Scafati), to the south of gate No. 27 of the R. Canale del Sarno.
As the two previous villas (nos. 33 and 34) constituted an essay of buildings that were scattered in antiquity on the banks of the river Sarno, at the lowest part of the plain, south from Pompeii, so this and the other following villa (no. 36) offer us an essay of similar buildings in the area which lies to the east of the city.
Although the building explored by sig. Ing. Matrone (see fig. 5) was brought back to the light only in the group of buildings located on the north of the central courtyard, "A", while groups on the other sides were just touched, it placed us once again in the presence of the usual scheme.
Also here, then, on the same axis of the courtyard "A" and of the cella vinaria "B", the entrances to the villa would have been found: the main one leading to the portico, from the east; the secondary one leading to the cella vinaria, from the west.
The displuviate atrium, "C", from which depended the kitchen and in the middle, the pistrinum, the praefurnium, the woodshed and some other rustic rooms, had here the same location already found in the villa Asellii (Notizie, 1921, p. 426 sgg.); returning also in the villa that I will describe after this, but however on the eastern side of the court-yard; and would have been in these last two villas lit thanks to a large open skylight in the roof in correspondence of the podium of the kitchen.
We are here at approximately 1500m to the east of the city walls of Pompeii, in an area in which the volcanic debris reached just about 4m high, with an almost complete absence of the ash layer: the ruins however emerged by a considerable height from material erupted in the first moments, and smoothed over by time so that the remote and recent explorations spared only the courtyard, which was the space discovered and considered unfruitful. As the remains and waste of previous research they considered the following objects and fragments of painted plasters collected immediately below the humus, scattered here and there in the area excavated:
— Fragments of murals:
l) a reddish dog tied by rope;
2) a manly bust, on a white background, of 0.70m at the side;
3) the bottom half of a draped figure, and in the distance a white ox and the rear half of a dark coloured ox, 0.50m long;
4) a landscape with a large portico and some trees on a white background, of 0.42m x 0.55m.
— Terra cotta: a rainwater spout/gutter with palmette design, of 0.46m x 0.15m in front.
— Bronze: a ring of 0.04m in diameter, an Imperial bronze medio and a bronze Byzantine statuette.
— Iron: a shovel with the handle snapped.
— Marble: fragments of a tràpeza which was later reconstructed. The white table, measuring 0.75m x 0.45m was supported by a white pillar, rising from the usual moulded base and decorated at the front with the bust-herm of a cupid in antique red marble.

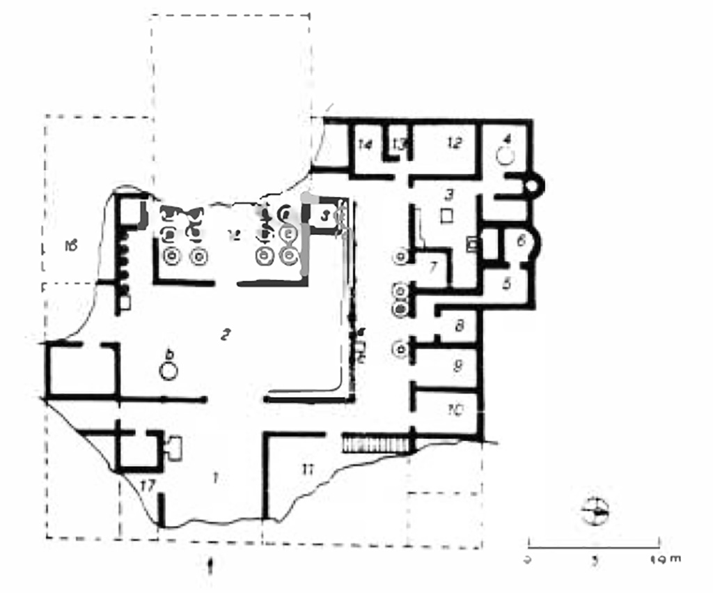
Scafati. Villa
Rustica in Fondo Matrone, Contrada Spinelli. Plan of villa by Della Corte.
See Notizie degli Scavi di Antichità, 1923,
p. 285 fig. 5.
See Casale A.,
Bianco A., Primo contributo alla topografia del suburbio pompeiano: Supplemento
al n. 15 di ANTIQUA ottobre-dicembre 1979, 39, p. 37, fig. 14.
The courtyard "A" was surrounded by a portico on the north and east sides (originally also on the south side, as was attested by walled pillars to the sides of the northern pluteus of room "no.11"); the columns, brick with a coating of white stucco, used in place of the Doric-style capital, a stucco crown of impressed palmette, alternatively red and blue: linked with each other by means of the red plastered pluteus, 1.20m high, 0.20m wide, the columns had a red plinth/zoccolo. All the inner wall of the walkway was covered with red plaster. It was divided into wide panels thanks to the use of simple white bands: at the centre of each panel animals were painted singly or in groups, such as a panther, a crocodile, a swan with unfurled wings, two standing birds.
It does not seem that this villa had water supply in 79, since the collection and storage of rainwater is clearly attested by the two puteals "a" and "d", the first of which received the water from the north-east corner of the portico trickling into the proper gutter, and the second received the rain from the south-west corner, and into in the basin thanks to the simple inclination of the floors. In "b" was a small bowl at the place where usually in town one would find a lead tank; in "c" a big tub, being used perhaps as a water-trough for beasts. In addition to the four large terracotta dolia on the plan, noted in the north portico, in the middle of the outer wall to the left of the triclinium "no.4", was a semi-circular niche, 0.45m high, (lararium?), in which, against all expectations, were found not the statuettes of the Penates, but those of two animals.
— Bronze: a lion with open mouth, in the act of taking a leap forward: below the raised forelegs, a support palmette sprang from the base (0.055m high); a horse of a very inferior make, of the same height, without a base, stepping forward to trot, Together with the two statuettes, four hinges, some bronze nails with heads, and three circular studs, turned, of bone, 0.03m wide, remains surely of a wooden box, were found.
From the north walkway the following items were provenanced:
— Bronze: a semi-circular buckle, 0.07m wide; a steelyard 0.17m long, with 4 hooks and 2 counterweights, of which the one adapted to an acorn and the other to a disc; a shallow bowl 0.34m in diameter without handles; a plate 0.20m. wide, with handle ending in a ram's head; an oenochoe, 0.15m high, whose handle ended up into a mask and down into a feline paw.
— Vitreous Paste: a tiny beetle, 7mm long.
— Iron: four hoes, 0.21-0.26m long; a 6 teethed harrow; the caudate loop limiting the oscillation of the arm of a large scale (trutina), 0.25 m high (cfr. Notizie, 1921, p. 441-442).
— Organic matter: a large deer horn, broken into its branches.
— Terracotta: two wine amphorae, and a base of a bowl of Arezzo with the mark C.P.P (CIL X, 8055 29), other than the large terracotta dolia already mentioned.
In the west walkway were gathered, another eight wine amphorae, a one-handled potbellied urceus, 0.25m high; a little cylindrical jar 0.10m high, and a two-handled spherical kitchen pot, 0.22 m high.
Towards the drinking trough, "c":
— Bronze: three rings and five buckles of varying sizes, evidently belonging to horse trappings, because they were found together with an iron horse bridle, entirely conserved.
In the east walkway (last section to the south):
— Bronze: another horse bridle, with some nails and buckles belonging to another horse harness; a middle Imperial bronze very worn.
Towards the doorway to the stairs "h":
— Bronze: an ovoid amphora, 0.40m tall, missing one of its two handles, which widened down into a simple heart shaped expansion;
—Iron: a hoe, 0.28m long, and a pickaxe, 0.38m long.
Five small dolia, or pithoi were lined up under the south wall of the courtyard, and twelve large dolia were embedded in the earth in the cella vinaria "B", in which were found some parts of a vitreous paste necklace.
Turning now to the rooms, that no trace was found of the upper floor if not for the stairs at "h": upper dining rooms were therefore only above the group of rooms "nos.1-4", which constituted the main owner’s apartment together with the rooms "nos. 8-10".
There only the walls were painted, with decorations of the fourth style, simple but well painted, but not worth the trouble to describe separately: a white background in "nos. 1, 2 and 3"; yellow in "triclinium 4"; red in the “apodyterium 5" and in the "caldarium 6"; black in "cubiculum 9". As a result, however, of the state of deep ruin found on the walls of these rooms, many times investigated as I have said, a few of the paintings and motives that at one time enlivened the decorations could be recovered, and were the following:
Cubiculum “no.3":
a) 0.47m: drunken Silenus, lying on the ground, and to whom a cupid offers the thyrsus;
b) 0.47m: Hercules and Omphale (see NdS 1923 Fasc. III tav. lett. c).

Scafati. Villa Rustica in Fondo Matrone, Contrada Spinelli. Cubiculum “no.3”: Painting of Hercules and Omphale,
See Notizie degli Scavi di Antichità, 1923, Fasc.
III tav. lett. c.
The original fresco is now in Rhode Island School of Design -
Museum. Inventory number 38.058.10.
See Garcia y Garcia L., 2017. Scavi Privati nel Territorio di Pompei.
Roma: Arbor Sapientiae, no. 50, p. 368, fig. 198, note 406.
See Winkes, R., 1982. Roman Paintings and Mosaics:
Catalogue of the Classical Collection. RISD Museum of Art, Providence R.I.,
p. 52, no. 22.
Triclinium "no. 4":
two rectangular squares in which are paintings of a wicker basket of ricotta, and some fishes.
Apodyterium "no.5":
a) a peacock.
b) a flying winged griffin.
c) agonistic representation: a spherical vase and a palm tree near a pilaster.
Caldarium "no.6":
a pair of naked wrestlers (see NdS 1923 Fasc. III tav. lett. b)
and bathers (see NdS 1923 Fasc. III tav. lett. a)

Scafati. Villa Rustica in Fondo Matrone, Contrada Spinelli. Caldarium "no.6": a pair of naked wrestlers.
See Notizie degli Scavi di Antichità, 1923,
Fasc. III tav. lett. a.

Scafati. Villa Rustica in Fondo Matrone, Contrada Spinelli. Caldarium "no.6". Curved panel with a pair of naked wrestlers.
Now in Naples Archaeological Museum. Inventory number 134059.
Bianca Maiuri describes the painting and attributes it to this villa.
See Maiuri, B.,
1950. Ludi Ginnico - Atletici a Pompei: in Pompeiana, Raccolta di Studi
per il secondo centenario degli scavi di Pompei. Napoli: Gaetano Macchiaroli,
p. 180, no. 22 and note 3.

Scafati. Villa Rustica in Fondo Matrone, Contrada Spinelli. Caldarium "no.6": Bathers.
A naked matron has white cap on her head and big ring on her right arm, with their feet in a circular metal tray, performing their ablutions with the assistance of a servant, also naked, who holds a cloth.
See Notizie degli Scavi di Antichità, 1923,
Fasc. III tav. lett. b.
Cubiculum "no.9": a leaning rhyton from a cornice; a panther; two small landscapes of very poor preservation and careless execution.
Nothing was found in the cubiculum "no.1 and no.2”; towards the east wall of the anteroom of the next cubiculum “no.3”, where the impressions left by a large wooden cupboard were found, the following bronzes were gathered: an ovoid cooking pot, in fragments, 0.30m high; fragments of a basin of 0.30m in diameter, with the handles ending in heads of snakes; an ovoid cooking pot, 0.28m high; two rings of 0.03 m in diameter.
In triclinium, "no. 4", with some remains of the lock of the door:
— Bronze: a cup from balance of 0.095m in diameter:
— Terra cotta: a one-handled urceus 0.15m high, and a two-handled conical drinking vessel, 0.16m high.
In apodyterium, "no.5":
—Terracotta: a tray with circular cup and conical foot, 0.12m high; a broken cup of Arezzo, with the mark planta pedis: CN ISM (CIL X, 8055 5).
In caldarium "no. 6": a bronze casserole, 0.14m wide, with handle ending in a semi crescent-shaped hole; and two simple circular lamps.
In the woodshed at the rear of the triclinium, in the atriolo "C": an axe of iron and a weight of travertine with elliptical base, 0.12m long were found. Few standing vestiges remained of the hearth of the praefurnium, according to the usual, with the impression of the lead boiler that had almost been eradicated: instead found almost whole was the pistrinum with its oven "g", a mortar "f", and the mill "e".
In cubiculum "no. 9":
— Iron: two long billhooks 0.35 and 0.40m, a rake with 8 teeth, and a rectangular-bladed cutlass, 0.55m long.
— Glass: a spherical container, 0.08m high.

Scafati. Villa Rustica in Fondo Matrone, Contrada Spinelli. Cubiculum 9. Wall panel with landscape.
Photo courtesy of Rhode Island School of Design - Museum. Inventory number 38.058.9.
See Garcia y Garcia L., 2017. Scavi Privati nel Territorio di Pompei.
Roma: Arbor Sapientiae, no. 50, p. 370, fig. 206a.
See Winkes, R., 1982. Roman Paintings and Mosaics:
Catalogue of the Classical Collection. RISD Museum of Art, Providence R.I.,
p. 56-7, no. 27.
In the neighbouring rustic room, “no.10”:
— Bronze: a group of imperial coins, of which, 29 were of large form and 45 of medium form.
— Terracotta: three wine amphorae, two conical amphorae, a horizontal fluting/streak 0.33m high, and a potbelly one-handled urceus 0.25 m high.
In the rustic room in part excavated, to the south of previous:
— Bronze: a small ovoid cooking pot 0.14m high, and a large bronze of Nero.
— Terracotta: two simple, rustic lamps and fragments of a third, and a bowl pseudo Aretino, 0.16 m wide.
In room "no.11", of unknown use:
— Bronze: a bronze medio of Nero and a few remains from the lock of the door.
— Bone: ten hinges of a box or wooden cabinet.
— Terracotta: an ovoid double-handled vessel with wide edge, 0.20m high, a pot-bellied one-handled urceus, 0.28m high and a simple lamp.
From the whole area surveyed came out a total twenty-two tiles and eighteen roof tiles, which were used in restoration work underway at Pompeii; over a tile fragment was found, graffitied before baking, the number CXX ...
Above a column of the north portico was graffitied the epigraph CIL IV, 6903: Nonis Aprilis / Tucur.
Matteo Della Corte
Vedi/See Notizie degli Scavi di Antichità, 1923, p. 280ff
![According to Varone, the S at the end of the first line is not seen and the first letter of the second line is a C and it should read cucur(ri).
PAP deposit, inventory number 20515.
See A. Varone, Titulorum graphio exaratorum qui in CIL Vol. IV collecti sunt imagines, Roma 2012, vol. II, p. 477 con foto (2)
The Epigraphic Database Roma now shows this as
Nonis Aprile(s)
cucur [CIL IV 6903]](Villa_035%20Scafati%20Contrada%20Spinelli,%20Fondo%20Matrone_files/image012.jpg)
Scafati. Villa Rustica in Fondo Matrone, Contrada Spinelli. Graffito from above a column of the north portico.
According to Varone, the S at the end of the first line is not seen and the first letter of the second line is a C and it should read cucur(ri).
PAP deposit, inventory number 20515.
See A. Varone, Titulorum graphio exaratorum qui in CIL
Vol. IV collecti sunt imagines, Roma 2012, vol. II, p. 477 con foto (2)
The Epigraphic Database Roma now shows this as
Nonis Aprile(s)
cucur [CIL IV 6903]